You are here: Home » Case » Instruction of Raymond Mill » Introduction of Main Mill for Raymond Mill HD1620

Introduction of Main Mill for Raymond Mill HD1620

Views: 63    

Raymond-mill-mainmill-450

Introduction of Main Mill for Raymond Mill HD1620

 

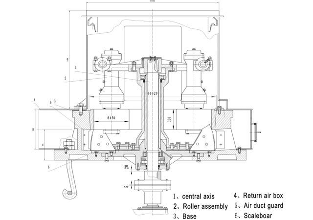
Raymond Mill HD1620


Each major structural part of the Raymond mill has its own independent motor drive and transmission.

The following is the introduction of the main part of the  Raymond mill transmission.


Fineness:80-400 Mesh

Capacity :2.5-24 T

Max Feeding Size:30mm

Grinding Rollers: 4PCS

Grinding Ring Outer Size:1620mm

Grinding Roller Size:450×300mm

General Motor Type:Y280S-4

Motor Power:90kw

Motor Rotation:1480r/min

 

1.The capacity is for limestone powder, and specification is just a reference. The actual production depends on these materials being processed.

2.The grinding ring size is the Outer Diameter× height

 

 

Main Mill of Raymond Mill Working Principle

 

The power of the main mill motor of Raymond mill is driven to the reducer of Raymond mill by belt wheel.

The output torque of the reducer drives the plum stand on the central shaft of the main Raymond mill to rotate in a circle through the coupling.

At the same time, the four roller assemblies on the main machine rotate due to friction with the grinding ring.

Under the action of centrifugal force, the four roller assembly swings outward and presses the ring of the Raymond mill.

At the lower end of the plum flower stand, the spatula intersecting with the grinding roll assembly throws the material between the grinding roll and the grinding ring to form a cushion layer during rotation.

The ore materials is crushed and ground under the rolling action of the mill roller assembly.

 

Driving Device of the Main Mill

The driving device of the main mill is composed of spindle, cylindrical gear, box cover, box body, shaft gear, screw, pulley, coupling and motor support.

The role of the screw of the transmission device is to lubricate the two bearings during the operation of the main mill

The oil level can be checked for the oil standard of the transmission.


Product Inquiry

Find Us On

Guilin Hangda Mining Machinery Co.Ltd.                 Chinese Website



 

HOT PRODUCT

CONTACT US

   No. 106, Lingbei Road, Lingchuan County,Guilin City, Guangxi Province, China
   0773-6816850  0773 -6816520
   +86 187 0783 5988

   glhdzg@126.com      
   Hanson   
   -
Copyright  2019 Guilin HangDa Mining Machinery Co., Ltd.